VENDITA APPARTAMENTO - ACCADEMIA - STADIO - ITALIA LIVORNO

                                                   
Accademia - Stadio - Italia
codice riferimento: Rif.4509

  Condividi   Condividi

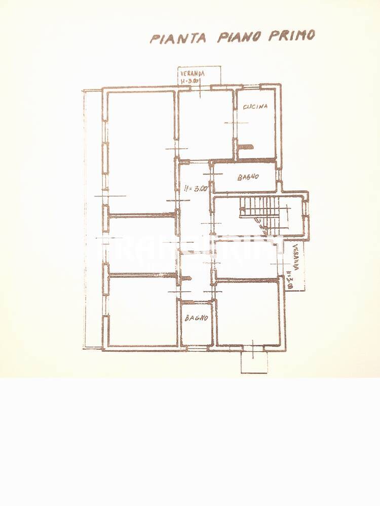
Rif. 4509 NOSTRA ESCLUSIVA STADIO In piccolo condominio molto ben tenuto proponiamo ampio appartamento di circa 170 mq, in ottime condizioni. L'immobile si presenta molto bene, luminoso ed accogliente, si sviluppa in un ampio ingresso ben curato, sala doppia con spazioso balcone, grande cucina a vista su sala pranzo, con balcone verandato, zona notte con armadio a muro, 4 CAMERE di cui due matrimoniali, una media ed una singola, 2 bagni con finestra. Completa la proprietà un GARAGE, una CANTINA ed un POSTO AUTO. Il riscaldamento è autonomo. (classe G - ipe 142,89) La richiesta è di euro 420.000




2 bagni, 3 o più camere, Balconi, Cantina, Cucina, Garage, Garage e posto auto, Posto auto, Posto moto e bici, Sala, Termoautonomo.
 
 
Piano: 1/4
Superficie: 170 mq
Classe: G
Condominio: € 130,00
Prezzo: € 420.000,00


Torna alla ricerca Richiedi informazioni