VENDITA ULTIMO PIANO - OSPEDALE LIVORNO

                                                       
Ospedale
codice riferimento: Rif.4495

  Condividi   Condividi

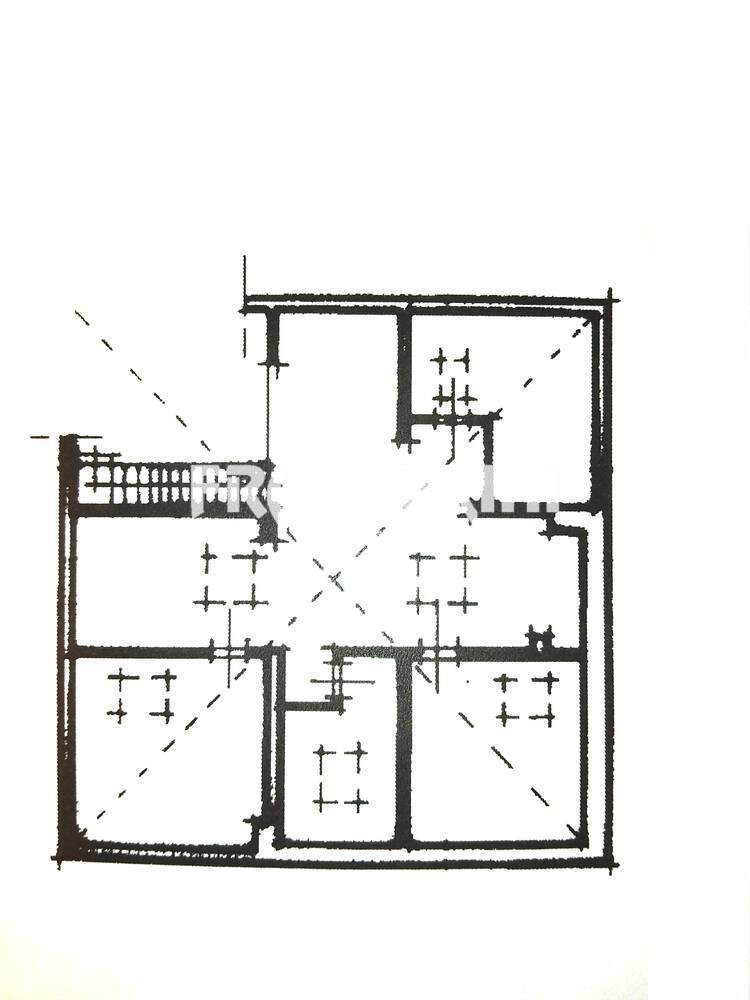
Rif. 4495 VIALE RISORGIMENTO CON GIARDINO E GARAGE - In ottima posizione residenziale, in contesto signorile, offriamo elegante primo piano di PALAZZINA con ingresso indipendente, servito da ampio GIARDINO privato e Passo Carrabile. L'appartamento si presenta molto spazioso, di circa 240 mq disposto su più livelli, in ottime condizioni. Al piano terra accesso al grazioso Giardino privato con piccola dependance e GARAGE di 21 mq. Al primo piano troviamo un grande ingresso, ampia sala con accesso a TERRAZZA e cucina abitabile, 2 CAMERE e doppi servizi. Al Piano mansardato ampi vani pluriuso. (Classe E - ipe 158,63) La richiesta è di euro 650.000




2 bagni, 2 camere, Balconi, Cucina, Garage, Giardino, Sala, Salone doppio, Termoautonomo, Terrazza abitabile, Ultimo piano.
 
 
Piano: 1/1
Superficie: 250 mq
Classe: G
Prezzo: € 650.000,00


Torna alla ricerca Richiedi informazioni