VENDITA INDIPENDENTI - ANTIGNANO LIVORNO

                                                                           
Antignano
codice riferimento: Rif.4461

  Condividi   Condividi

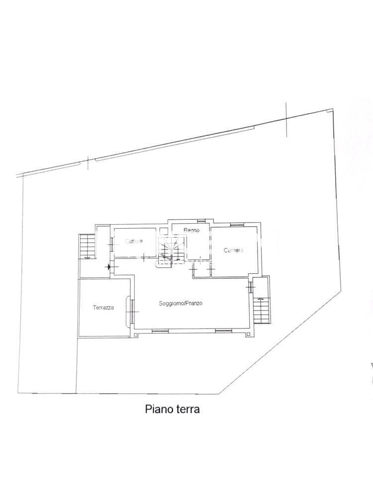
Rif. 4461 ANTIGNANO IN ESCLUSIVA - PALAZZINA CON GIARDINO In prossimità del mare, Palazzina di recente costruzione libera su quattro lati con Giardino di 300 mq con passo carrabile e cancellino pedonale, disposta su più livelli e cosi composta: ampio ingresso, Salone doppio con accesso a terrazza abitabile, grande Cucina abitabile, studio e bagno con finestra; al secondo livello troviamo 3 CAMERE di cui una con terrazza abitabile e possibilità secondo bagno. TAVERNA composta da tre vani finestrati adibita a zona relax e zona lavanderia. Ottime rifiniture, molto luminosa. (classe B - ipe 50,75) La richiesta è di euro 599.000




2 o più bagni, 3 o più camere, Cucina, Giardino, Salone doppio, Termoautonomo, Terrazza abitabile.
 
 
Piano: t/t
Superficie: 180 mq
Classe: B
Prezzo: € 599.000,00


Torna alla ricerca Richiedi informazioni