VENDITA APPARTAMENTO - GOITO - MONTEBELLO LIVORNO
Goito - Montebello
codice riferimento: Rif.4447
Condividi
Condividi
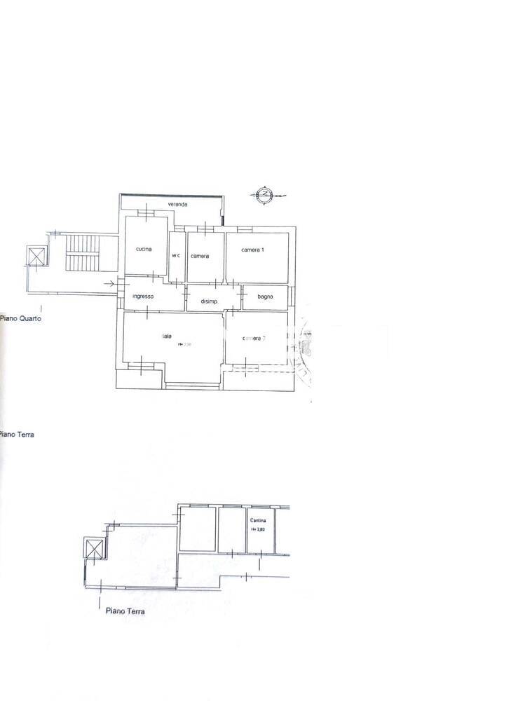
RIF.4447 NOSTRA ESCLUSIVA VIA GOITOIn una delle zone più ricercate e tranquille di Livorno, proponiamo ampio e luminoso appartamento posto al quarto piano di un elegante condominio dotato di ascensore. L’immobile di ampia metratura è stato completamente ristrutturato, è composto da un Salone doppio servito da spazioso balcone, ideale per colazioni o cene, perfetto per momenti di relax e convivialità, Cucina abitabile con grande balcone verandato ad uso lavanderia. La zona notte comprende 3 CAMERE da letto, di cui 2 matrimoniali, ideali per famiglie o per chi desidera ambienti versatili e spaziosi, 2 bagni finestrati di cui uno ristrutturato recentemente, entrambi comodi e funzionali, ulteriori balconi che donano luce naturale agli ambienti. Conclude la proprietà un POSTO AUTO assegnato all'interno del condominio ed una CANTINA. Il riscaldamento è centralizzato. (classe G) La richiesta è di 445.000 euro.
2 bagni, 3 o più camere, Ascensore, Balconi, Cantina, Posto auto, Salone doppio, Termocentrale.
Piano: | 4/5 |
Superficie: | 167 mq |
Classe: | G |
Condominio: | € 180,00 |
Prezzo: | € 445.000,00 |
Torna alla ricerca
Richiedi informazioni